#12j609图集电子版简介
全新的国标图集文件——12j609《防火门窗》国家建筑标准图集,全面覆盖了各类防火门窗及防火卷帘的设计与安装需求。此图集不仅为设计师提供了一个直观详尽的设计参考,还为建设者提供了施工依据,确保工程符合国家的安全标准。
图集详细介绍了多种类型的防火门窗,包括钢质、不锈钢、木质以及木质装饰防火门,满足不同环境下的防火需求。此外,还包括了模压板防火门、管道井防火门等特殊应用场景的防火门窗设计。在防火卷帘方面,图集涵盖了防火窗、防火卷帘及其相关附件的设计细节,为用户提供了一站式的解决方案。
超高清的文字与图片资源,使用户能够轻松查阅所需信息,并且支持在手机或电脑上自由浏览和打印,极大地提升了使用便捷性。无论是建筑设计、施工管理还是质量监督人员,都能从中获得宝贵的参考资料,助力工程项目顺利进行。
此图集是确保建筑消防安全的重要工具,适用于各类民用和工业建筑项目,对于推动防火门窗行业规范化发展具有重要意义。
依据标准规范
《建筑用安全玻璃防火玻璃》 GB15763.1-2009
《防火卷帘》 GB14102-2005
《建筑设计防火规范》 GB50016(报批稿)
《防火门》 GB12955-2008
《防火窗》 GB16809-2008
《建筑木门木窗》 JG/J122-2000
《建筑材料及制品燃烧性能分级》 GB8624-2006
《门和卷帘的耐火实验方法》 GB/T7633-2008

主要目录
目 录 1
总说明 4
防火门类型及编号 10
1.钢、不锈钢防火门
GFM、BFM钢、不锈钢防火门选用图 11
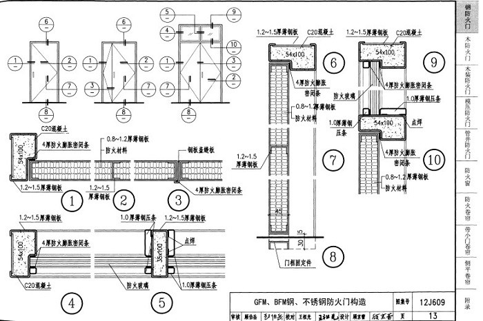
GFM、BFM钢、不锈钢防火门构造 13
GFM1、BFM1钢、不锈钢防火门选用图 14
GFM2、BFM2钢、不锈钢防火门选用图 16
GFM3、BFM3钢、不锈钢防火门选用图 18
GFM4.BFM4钢、不锈钢防火门选用图 20
GFM5、BFM5钢、不锈钢防火门选用图 22
GFM6、BFM6钢、不锈钢防火门选用图 24
GFM7、BFM7钢、不锈钢防火门选用图 26
GFM8、BFM8钢、不锈钢防火门选用图 28
GFM9、BFM9钢、不锈钢防火门选用图 30
GFM1~9、BFM1~9钢、不锈钢防火门构造 32
GFM、BFM钢、不锈钢防火玻璃门构造 33
GFM、BFM钢、不锈钢防火中空玻璃门构造 34
GFM、BFM钢、不锈钢防火门洞口与门框连接安装详图 35
2.木防火门
M1FM木防火门选用图 36
M1FM木防火门构造 37
M1FM钢框木防火门构造 38
M1FM1木防火门选用图 39
M1FM2木防火门选用图 40
M1FM3木防火门选用图 41
M1FM4木防火门选用图 42
M1FM5木防火门选用图 43
M1FM6木防火门选用图 44
M1FM7木防火门选用图 45
M1FM8木防火门选用图 46
M1FM9木防火门选用图 47
M1FM1~M1FM8木防火门构造 48
M1FM1~M1FM8钢框木防火门构造 49
3.木装饰防火门
M2FM1木装饰防火门选用图 50
M2FM2木装饰防火门选用图 51
M2FM3木装饰防火门选用图 52
M2FM4木装饰防火门选用图 53
M2FM5木装饰防火门选用图 54
M2FM6木装饰防火门选用图 55
M2FM1~M2FM6木装饰防火门构造 56
M2FM1~M2FM6钢框木装饰防火门构造 57
M2FM7木装饰防火门选用图 58
M2FM7木装饰防火门构造 59
M2FM7钢框木装饰防火门构造 60
4.模压板防火门
YFM1模压板防火门选用图 61
YFM2模压板防火门选用图 62
YFM3模压板防火门选用图 63
YFM4模压板防火门选用图 64
YFM5模压板防火门选用图 65
YFM6模压板防火门选用图 66
YFM1~YFM6模压板防火门构造 67
YFM1~YFM6钢框模压板防火门构造 68
YFM7模压板防火门选用图 69
YFM7模压板防火门构造 70
YFM7钢框模压板防火门构造 71
M1FM、M2FM、YFM木防火门洞口与门框连接安装详图 72
5.管道井防火门
DMFM管道井木防火门构造 73
DGFM管道井钢防火门构造 74
6.防火窗
GFC、BFC、MFC固定式钢、不锈钢、木防火窗选用图 75
GFC、BFC、MFC固定式钢、不锈钢防火窗构造 77
MFC固定式木防火窗构造 78
PGFC、PBFC、PMFC平开钢、不锈钢、木防火窗选用图 79
PGFC、PBFC平开钢、不锈钢防火窗构造 80
GFC平开、固定钢防火窗构造 81
GFC节能钢防火窗构造 82
PMFC平开木防火窗构造 84
GFC、BFC钢防火窗洞口安装详图 85
7.防火卷帘
GFJ钢防火卷帘选用要点 86
GFJ钢防火卷帘选用表 87
GFJ钢防火卷帘平、立、剖面图 88
TFJ水雾式钢特级防火卷帘选用要点 89
TFJ水雾式钢特级防火卷帘选用表 90
TFJ水雾式钢特级防火卷帘平、立、剖面图 91
WFJ水雾式无机纤维复合特级防火卷帘选用要点及选用表 92
WFJ水雾式无机纤维复合特级防火卷帘平、立、剖面图 93
GFJ、TFJ、WFJ单导轨安装装饰节点 94
SWFJ双轨无机纤维复合特级防火卷帘选用要点及选用表 96
SWFJ双轨无机纤维复合特级防火卷帘构造 97
SWFJ双导轨安装装饰节点 98
KGFJ带平开小门钢防火卷帘选用要点及选用表 100
KGFJ带平开小门钢防火卷帘构造 101
KGFJ带平开小门钢防火卷帘安装装饰节点 102
CGFJ侧向钢防火卷帘选用要点 105
CGFJ侧向钢防火卷帘选用表 106
CGFJ1侧向钢防火卷帘构造 107
CGFJ2侧向钢防火卷帘构造 108
PGFJ水平钢防火卷帘选用要点及选用表 109
PGFJ水平钢防火卷帘详图 110
8.附录
附录一 卷机功率表 111
附录二 卷帘下缘构造图 111
附录三 防火门窗设置部位规定 112